1 Fitchburg Street
Unit C322
Somerville, MA 02143
Interested in a career? Please contact us via the email link above.
Site by D&CO
Contractor: Adams & Beasley Custom Builders
Lighting Consultant: Light Positive
Nat Rea
Published in Modern Luxury Magazine “Peek Inside This Back Bay Condo’s Timeless Transformation” April 2025
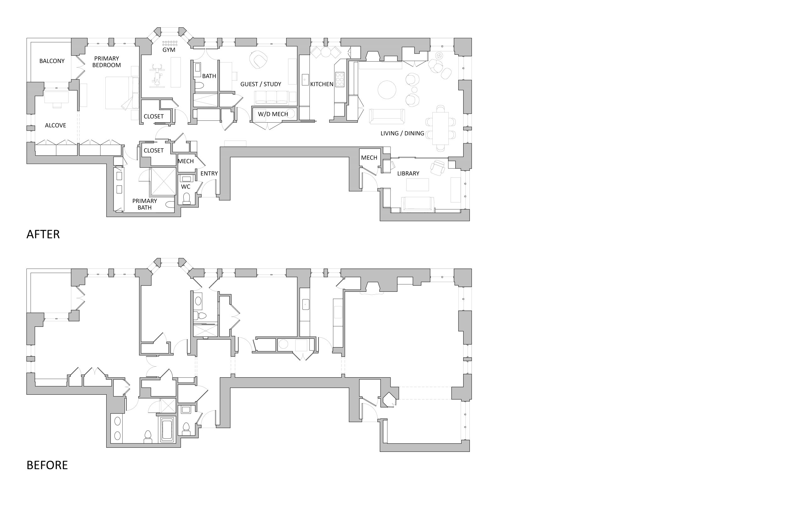
This condominium renovation in the heart of downtown Boston was designed for a couple moving from their large and traditional suburban home to a significantly smaller single floor condo. The design objective was twofold: to create a contemporary “fresh” urban environment that harmonizes with the eclectic art and furniture they’ve collected over their lives, while also offering distinct areas for each client to engage in their own pursuits without sacrificing a sense of openness.
The apartment is long and narrow and was weighed down by an overabundance of traditional detailing; layers of crown and panel molding quite literally shrank each room. Due to structural constraints, most interior walls had to remain in place. However, by stripping back the excessive ornamentation and reconfiguring some secondary spaces, we delivered the contemporary home the owners envisioned.
The long hallway that runs the length of the apartment was transformed from a corridor to an art gallery by removing the cased openings along its length and incorporating art lighting, making it a destination as much as a circulation spine. At one end of the apartment, the living room and library are now separated by a glass and steel door, creating the sense of more space while maintaining privacy when needed. At the far end the spacious primary suite was upgraded with multiple walk-in and reach-in closets.
The palette of materials throughout is simple and clean, with stile and rail rift oak cabinets that evoke traditional cabinetry with a contemporary flair. We worked with the client on all aspects of the interiors, which included incorporating some of their existing furnishings into the new plan and sourcing new and custom pieces more suited to the scale and style of the condominium. CTA also assisted with window treatments, decorative lighting, hardware, and paint colors.
This condominium renovation in the heart of downtown Boston was designed for a couple moving from their large and traditional suburban home to a significantly smaller single floor condo. The design objective was twofold: to create a contemporary “fresh” urban environment that harmonizes with the eclectic art and furniture they’ve collected over their lives, while also offering distinct areas for each client to engage in their own pursuits without sacrificing a sense of openness.
The apartment is long and narrow and was weighed down by an overabundance of traditional detailing; layers of crown and panel molding quite literally shrank each room. Due to structural constraints, most interior walls had to remain in place. However, by stripping back the excessive ornamentation and reconfiguring some secondary spaces, we delivered the contemporary home the owners envisioned.
The long hallway that runs the length of the apartment was transformed from a corridor to an art gallery by removing the cased openings along its length and incorporating art lighting, making it a destination as much as a circulation spine. At one end of the apartment, the living room and library are now separated by a glass and steel door, creating the sense of more space while maintaining privacy when needed. At the far end the spacious primary suite was upgraded with multiple walk-in and reach-in closets.
The palette of materials throughout is simple and clean, with stile and rail rift oak cabinets that evoke traditional cabinetry with a contemporary flair. We worked with the client on all aspects of the interiors, which included incorporating some of their existing furnishings into the new plan and sourcing new and custom pieces more suited to the scale and style of the condominium. CTA also assisted with window treatments, decorative lighting, hardware, and paint colors.